Дымогенератор: что это
Дымогенератор — это аппарат, предназначенный для создания дыма без использования открытого огня или нагрева продуктов.

Его компоненты включают в себя емкость для топлива, место для возгонки и вентиляцию. Устройство обеспечивает низкую температуру копчения, что позволяет продуктам приобрести характерный вкус и аромат без приготовления их. Он придает блюдам разнообразные вкусовые оттенки.
Дымогенератор холодного копчения: принцип работы
В дымогенераторе используются опилки, стружка или дымовые чипсы. Топливо размещается в пространстве генератора и разжигается через запальное отверстие.

Главный принцип — ограничение доступа кислорода к топливу. Это достигается с помощью заслонок или плотного уплотнения камеры. Без доступа кислорода топливо не может гореть. Правильной регулировкой поступления через колосниковую решетку воздуха (он обозначен синей стрелкой) добиваются не горения, а тления с большим выделением дыма.
Компрессор через узкую трубку подает воздух, создавая зону разрежения за пределами дымогенератора. Дым по трубе перемещается в коптильню, проходя через продукты.
Как пользоваться дымогенератором для холодного копчения
Подготовьте продукты. Они должны быть чистыми. Заполните дымогенератор древесными опилками. Зажгите их. Пламя должно тлеть. Контролируйте количество дыма. Уменьшите пропускание воздуха для более интенсивного копчения или увеличьте для умеренного. Разместите подготовленные продукты на решетке копчения внутри коптильни. Убедитесь, что они распределены равномерно.
Закройте коптильню и обеспечьте равномерный дымопровод внутри. Процесс занимает несколько часов. После завершения извлеките продукты и дайте им немного постоять.
Дымогенераторы спирального и лабиринтного типа, конструкция
Дымогенератор представляет собой аппарат, при помощи которого происходит беспрерывная подача дыма в коптильную камеру. Используется чаще всего при холодном копчении, но и в процессе горячего копчения могут применяться данные устройства лабиринтного или спирального типа.

Особенности
Учитывая, что холодное копчение может длиться от 10 часов до нескольких суток, важно обеспечить постоянное поступление дыма, чтобы не было надобности открывать дверцы коптильни. Для этого могут применяться самые часто встречающиеся виды дымовых генераторов:
- лабиринтные;
- спиралевидные.
Данные конструкции весьма похожи и имеют практически одинаковый принцип работы, но все-таки существуют определенные отличия, о которых рассказано дальше.
Дымогенератор лабиринтного типа ‒ это короб небольшого размера квадратной или прямоугольной формы со сторонами от 20 до 50 см в зависимости от размеров коптильни.
Важно укладывать опилки так, чтобы они не выступали за верхний край перегородок, иначе возможно воспламенение или быстрое сгорание опилок

Обязательно отделяйте мелкой сеткой или перфорированным металлом перегородки и наружный короб. Так не произойдет рассыпание опилок, но при этом будет свободный доступ воздуха, что обеспечит непрерывный процесс тления.
После того как дымогенератор побывал в использовании, его в обязательном порядке надо очистить жесткой щеткой. Это позволит не допустить, чтобы в отверстиях сетки осталась зола.

Дымогенератор спирального типа схож по конструкции с лабиринтным типом, но сетка в таком случае укладывается в виде спирали. Между ее витками засыпают опилки или щепу. В начале спирали их поджигают и ставят в коптильню.
Для того чтобы процесс тления происходил хорошо, необходимо сделать несколько отверстий внизу емкости для подачи и циркуляции воздуха. Размер коптильни определяет, какого размера и в каком количестве будут отверстия внутри короба.

Как устроена коптильня Синец
Как сделать своими руками
Дымогенератор спиралевидного типа делают по следующей схеме:
- для охлаждения дыма нужна камера и вертикальная труба со шнеком в ней;
- охладитель изготовьте из трубы диаметром 100 мм и длиной 500 мм;
- используйте трубу диаметром 40 мм и длиной 500 мм для оси;
- виток шнека изготовьте из стальных колец с наружным диаметром 100 мм и внутренним – 45 мм;
- разрежьте с одной стороны кольца, раздвиньте витки и поместите шнек в корпус;
- приварите к торцам корпус крышки, а к бокам – дымоход.

Где можно купить хорошую коптильню
Для сооружения лабиринтного дымового генератора своими руками необходимо:
- приобрести перфорированный лист металла толщиной от 0,5 до 1 мм;
- сделать двойные перегородки в форме конуса, чтобы не произошло воспламенение опилок, которые находятся в соседних секциях;
- в боковой стенке напротив первой секции лабиринта нужно сделать дырку для поджога щепы или опилок;
- прикрепить все детали при помощи паяльника или прикрутить нержавеющей проволокой (в перфорированном металле не нужно для этого проделывать отверстий).

Сооружение пассивного дымогенератора спирального, либо лабиринтного типа не представляет собой ничего сложного, что позволяет без больших усилий изготовить его самостоятельно из подручных средств. В результате готовый дымогенератор будет радовать вас вкусными и ароматными блюдами из мяса, рыбы и овощей.
Дымогенератор с внешним охлаждением
Дымогенераторы являются полезным инструментом для создания эффекта дыма на различных мероприятиях или в театральных постановках. Этот тип дымогенератора позволяет более эффективно контролировать выходящий дым и предотвращает перегрев устройства.

Список материалов:
- Контейнер из нержавеющей стали с плотно закрывающейся крышкой
- Труба из нержавеющей стали
- Насос для создания давления
- Электрический нагревательный элемент, вентилятор
- Термостатический регулятор температуры
- Медный трубопровод для охлаждения
- Водяной насос
- Шланги и соединительные элементы
- Электрические провода и разъемы
- Инструменты: сверло, паяльник, ключи, пинцет

Подготовка контейнера:
- Сверлите отверстия в контейнере: одно для установки трубы и другое для выхода дыма.
- Установите вентилятор на крышку контейнера, рядом с отверстием для выхода дыма.

Установка нагревательного элемента:
- С помощью сверла сделайте отверстие в боковой стенке контейнера для установки нагревательного элемента.
- Вставьте нагревательный элемент в отверстие и закрепите его.
- Подключите нагревательный элемент к электрическим проводам и разъемам согласно инструкциям производителя.
Подключение насоса и трубопровода:
- Установите насос внутри контейнера и закрепите его.
- Присоедините один конец трубопровода к насосу и другой конец — к трубе, установленной на крышке контейнера.
Установка системы охлаждения:
- Подключите медный трубопровод к нагревательному элементу и к водяному насосу.
- Разместите водяной насос в ведре с холодной водой.
- Присоедините шланги для циркуляции охлаждающей жидкости между нагревательным элементом и водяным насосом.
- Подключите электрические провода от нагревательного элемента и вентилятора к термостатическому регулятору температуры.
- Подключите термостатический регулятор температуры к источнику питания в соответствии с инструкцией.

Проверка и безопасность:
- Перед включением убедитесь, что все компоненты правильно подключены и закреплены.
- Убедитесь, что контейнер герметично закрыт.
- Проверьте работу системы охлаждения, включив насос и убедившись, что охлаждающая жидкость циркулирует.
- Проверьте работу дымогенератора, включив нагревательный элемент и вентилятор.
- При работе с дымом соблюдайте меры безопасности, такие как проветривание помещения и использование защитной маски.

Дымогенератор в домашних условиях своими руками
Простое устройство из старого холодильника
Для создания простого дымогенератора для холодного копчения из старого холодильника потребуются лишь несколько деталей. В качестве корпуса можно использовать верхнюю часть холодильника без двери, а в качестве генератора дыма — кирпичи и дрова. Для создания дыма необходимо поджечь кирпичи, затем на них уложить дрова, которые будут долго и равномерно гореть, образуя необходимый дым. Полученный дым проникает в холодильник и позволяет коптить продукты.

Холодильник можно использовать не только для копчения, но и для сушки продуктов, например, рыбы или мяса. Для этого необходимо создать отверстие в верхней части холодильника, чтобы через него мог выходить дым. После создания отверстия необходимо закрыть его с помощью металлической крышки с отверстием для термометра.

Кроме того, в холодильнике можно создать несколько полок, на которых будут располагаться продукты. Для этого необходимо установить деревянные бруски внутри холодильника. Полки можно сделать из металлической сетки, которая пропускает дым.

Этот метод создания дымогенератора является одним из самых простых и доступных, и может быть использован любым человеком, у которого есть старый холодильник. Однако, следует помнить, что при использовании открытого огня необходимо быть предельно осторожным и соблюдать все меры безопасности.

Схема прибора из металлического ведра
Создание дымогенератора из металлического ведра является еще одним простым способом для холодного копчения. Для изготовления такого устройства потребуются:
- Металлическое ведро;
- Древесный уголь или щепа;
- Кирпичи или камни;
- Трубка для выхода дыма.

Схема устройства довольно проста. Сначала нужно установить внизу ведра решетку из кирпичей или камней. На решетку укладываются древесный уголь или щепа, которые будут сжигаться, образуя дым. Для получения дыма также можно использовать сухие листья или траву.

Далее, на вершину ведра устанавливается трубка для выхода дыма, которая должна иметь достаточную высоту, чтобы дым мог свободно выходить и не затруднять процесс копчения.

Чтобы управлять температурой внутри ведра, можно добавить дополнительную решетку, которая будет разделять ведро на две части. В одной из частей располагается дымогенератор, а в другой — продукты для копчения.

Важно помнить, что для изготовления дымогенератора из металлического ведра необходимо использовать только негорючие материалы, а также соблюдать все меры безопасности при работе с открытым огнем
Таким образом, дымогенератор из металлического ведра является простым и доступным вариантом для холодного копчения продуктов, который может быть создан своими руками в домашних условиях.

Чертежи для дымогенератора из кастрюли
Для изготовления дымогенератора из кастрюли потребуются следующие материалы:
- Металлическая кастрюля;
- Металлический крышка к кастрюле;
- Листовая сталь или металлический уголок;
- Труба для выхода дыма;
- Шурупы;
- Дрель с дисковой пилой.

Чертеж для дымогенератора из кастрюли состоит из следующих этапов:
- Измерьте диаметр кастрюли и вырежьте круг из листовой стали или металлического уголка, который будет служить основанием для дымогенератора.
- Поставьте кастрюлю на основание и установите трубу для выхода дыма в крышке кастрюли. Обрежьте трубу так, чтобы она достигала крышки кастрюли и оставила достаточное расстояние до верхней части крышки.
- Вырежьте отверстие в основании дымогенератора для установки топки. Отверстие должно быть достаточного размера, чтобы в него можно было поместить топку и в тоже время обеспечить достаточную поддуваемость к топке.
- Установите топку в отверстие основания дымогенератора. Топка должна быть устойчиво закреплена в отверстии, чтобы она не двигалась в процессе копчения.
- Соедините основание дымогенератора и крышку кастрюли с помощью шурупов и дисковой пилы. Убедитесь, что все соединения прочные и надежные.
- В дымогенераторе должны быть отверстия для подачи воздуха в топку. Число и размеры отверстий зависят от размеров кастрюли и топки.
- Дымогенератор из кастрюли готов к использованию. Для копчения продуктов необходимо зажечь топку и покрыть крышку кастрюли.

Таким образом, чертеж для дымогенератора из кастрюли является простым и доступным способом для создания дымогенератора своими руками в домашних условиях.

Виды самодельных генераторов
Схемы самодельных дымогенераторов могут немного отличаться, но все они объединены общим устройством. Они включают камеру, в которой происходит процесс пиролиза, расположен источник нагрева, трубопровод для дыма и система охлаждения дыма. Изготовить устройство можно с применением подручных материалов. Можно сделать дымогенератор из огнетушителя, электроплитки или аквариумного компрессора. Рассмотрим эти и другие идеи подробнее.
Дымогенератор из электроплитки
Если идея домашней копчёной колбаски посетила вас только что, а заранее к ней вы никак не готовились, можно найти простой и быстрый способ: сделать его из электрической плитки. Все остальные детали можно поискать в сарае или гараже: бочка без дна или кусок жестяной трубы, кусок проволочной сетки, лист фанеры и щепа.
Практически на любой даче есть электроплитка, она и станет частью коптильни
Устраивать импровизированную коптильню лучше на улице, потом дома будет трудно избавиться от ароматов, которые пропитают все вещи. Устанавливают плитку в месте, до которого дотянется удлинитель. На электроплитку ставят бочку, в неё насыпают щепу. На 2/3 высоты бочка протыкается двумя арматурными штырями крест-накрест, на них укладывается сетка. Здесь будут подвешены ваши продукты. Сверху бочку накрывают листом фанеры или железа. Коптильня готова. Осталось только отрегулировать плитку на минимальную температуру, чтобы тлела щепа, и время от времени подкидывать в бочку свежий материал для пиролиза.
Процесс копчения с таким устройством не очень удобен тем, что нужно постоянно контролировать ситуацию, поднимать бочку для регулировки температуры, вынимать продукты для досыпки щепы
Такое устройство нельзя назвать правильным дымогенератором для холодного копчения, но для временного использования идея вполне подойдёт.
Генератор для коптильни из огнетушителя
Отличная идея для самодельного генератора дыма – использовать старый огнетушитель. У него нужно отрезать верхушку, она будет потом использоваться как крышка. Можно даже не убирать рычаг, он станет ручкой. Ниже среза в корпусе просверливаются два отверстия для доступа воздуха и выхода дыма.
Таким образом, вы получите генератор с верхним эжектором. Преимущество использования огнетушителя заключается в том, что он герметичен и прочен, имеет подходящий размер. Такая коптилка холодного копчения с дымогенератором, сделанная своими руками, может беспрерывно работать 10−12 часов.
Как сделать дымогенератор из огнетушителя в видеосюжете:
Как использовать аквариумный компрессор для дымогенератора
Мы уже говорили о том, что для работы небольшого генератора дыма можно использовать маломощный аквариумный компрессор. Для этой цели потребуется активный компрессор, то есть тот, который устанавливается снаружи аквариума. Погружные аквариумные фильтры для дымогенератора не подходят.
Такой прибор вполне сможет обслужить небольшую коптильню объёмом 15−20 литров. Он обеспечит достаточную подачу дыма. Лучше, если устройство оснащено регулировкой мощности подачи воздуха. Подсоединить компрессор своими руками для дымогенартора несложно: если у него есть два выхода для воздуха, нужно объединить подачу в один канал и вставить шланг в штуцер для подачи воздуха в эжекторе.
Подобная система может работать хоть круглосуточно, помпа потребляет мало электроэнергии
Можно пойти и другим путём: использовать вентилятор для дымогенератора. Для этой цели подойдёт компьютерный кулер, он обеспечит необходимое нагнетание воздуха. Подробности работы в этом видео:
Печка-дымогенератор для коптильни
Для коптильни большого объёма потребуется полноценная печь. Печку дымогенератора для холодной коптильни несложно сделать своими руками: это элементарная буржуйка с двумя уровнями для топлива: нижний− для дров и верхний – для щепы. В нижнюю часть закладывают пеллеты, дрова или ставят портативную газовую плитку, которая будет нагревать верхнюю часть с опилками. От верхней части идёт труба − дымопровод, от нижней – обычная вытяжка, как для печи.
Для понижения температуры дыма трубопровод охлаждают, закапывая в землю или делая водяную «рубашку». Чтобы дым поступал в коптильню, трубу располагают с наклоном в сторону печки
Модернизация
Описанная выше конструкция полностью работоспособна. Но она имеет много недостатков, не очень удобна. По результатам ее использования сделаны доработки и усовершенствования.
Регулируемая тяга
Один из главных недостатков описанной конструкции — плохая регулировка интенсивности горения. Ее можно немного изменить, регулируя производительность компрессора. В конструкцию можно добавить регулируемое поддувало. Его можно сделать по принципу шибера:
- В нижней части корпуса (выше места крепления стеки) приварить кусок круглой трубы длиной 10-15 см.
- Просверлить два отверстия, которые располагаются строго одно напротив другого.
- Взять пруток, которых проходит в эти отверстия. Его длина на 20 см больше диаметра трубы.
Шибер выглядит так
- Из листа металла (2-3 мм толщины) вырезать круг. Его диаметр чуть меньше внутреннего диаметра трубы.
- Из прутка сделать «ручку» (согнуть ее).
- Вставить в отверстия ручку, приварить вырезанный круг.
Все, регулируемая заслонка готова. Поворачиваете ее, регулируете интенсивность поступления воздуха, регулируя интенсивность горения.
Зольник
Еще один недостаток — через сетку просыпается зола. Можно ставить дымогенератор на металлическую пластину, но можно сделать зольник. Кстати, шибер можно сделать в зольнике. Это будет правильнее, так как подсос воздуха можно будет почти перекрыть, чего с шибером в корпусе не добьешься — воздух поступает через сетку.
Зольник — небольшая емкость по размерам чуть больше корпуса
Зольник делают из отрезка трубы чуть большего сечения, чем труба на корпусе. Если такой нет, придется сварить. К куску трубы приваривается дно, к корпусу — по периметру — тонкая полоса металла. Корпус вставляется в зольник (ножки привариваются также к нему).
Сбор конденсата
При работе дымогенератора для холодного копчения происходит выделение конденсата. Это осложняет жизнь, особенно если на улице температура невысокая. Решить проблему можно сделав сборник для конденсата. Для этого:
- выходную трубку дымогенератора опускаем вниз,
- в нижней точке устанавливаем емкость для конденсата, приварив к ней две трубы — одну напротив другой;
- с противоположной стороны труба снова поднимается вверх и входит в коптильный шкаф.
Для сбора конденсата усложняю трассу подачи дыма
При таком устройстве значительная часть конденсата оказывается в емкости. Проблема стоит не так остро.
Дымогенератор из электроплиты
Для периодического копчения небольшого количества рыбы или мяса можно изготовить простой дымогенератор с использованием электрической плитки.
Понадобятся следующие составляющие:
- электрическая плитка;
- старая кастрюля;
- труба или бывшая в употреблении бочка,
- сетка из проволоки;
- два прута арматуры;
- лист железа, фанеры;
- опилки, щепки.
Коптильня должна располагаться на свежем воздухе, максимально далеко от жилых помещений. Для работы нужно электричество, возможно придется воспользоваться удлинителем. Иначе вещи в доме пропахнут дымом.
Пошаговая инструкция:
- Подготовить бочку. Тщательно очистить ее от остатков содержимого. Затем, отмерив примерно одну треть высоты от верха бочки, пропустить через ее стенки несколько арматурных прутов. На арматуру закрепить сетку, к ней подвесить необходимые продукты. Бочка готова к использованию.
- Устойчиво установить плитку на негорючую поверхность и подключить ее к розетке.
- Положить в кастрюлю древесное топливо.
- Кастрюлю поставить на включенную в розетку плитку.
- При помощи ручки регулятора температуры отрегулировать мощность ее нагрева.
- Поставить бочку на плитку.
- Прикрыть сверху конструкцию железом или фанерой.
Одна загрузка позволит работать такому дымогенератору для холодного копчения 4 — 6 часов. Усложняется процесс необходимостью постоянного контроля количества топлива и коррекции температуры тления. Бочку для этого придется периодически поднимать.
Несмотря на наличие недостатков в этой конструкции, многих пользователей привлекает простота сборки и низкие затраты на изготовление.
Особенности технологии

Одно из главных отличий холодного копчения от горячего сводится к затрачиваемому времени. Процесс занимает несколько дней. На время влияет размер продукции, каким образом она мариновалась и дополнительной подготовке подвергалась, а также используемое сырье. В некоторых случаях оно доходит до нескольких недель. Обработка холодным дымом способствовала полному удалению влаги из продукта. Длительный и сложный процесс потребует от исполнителя поддержания температуры на определенном уровне (30 — 40°С), неустанного контроля количества дров. Нарушение технологии и прерывание приведут к порче копченостей, либо появлению неприятного вкуса. Обработка не нарушает плотность структуры, а также сохраняет жиры и другие полезные вещества. Время хранения копченостей превосходит те, что были получены горячей методикой.
Для охлаждения дыма камеру сгорания размещают на определенном расстоянии от коптильного шкафа (емкости, где продукты будут подвергаться обработке). Для достижения оптимального результата соединяющую элементы конструкции трубу, проводят под землей. Двигаясь по каналу дым, охлаждается, Процесс сопровождается выделением конденсата, в котором содержатся деготь, мелкая сажа и ряд других примесей, губительно воздействующих на организм человека.
Холодному копчению подвергают рыбу, мясо, птицу, сыры, фрукты и овощи. Для каждого блюда индивидуально подбирают длительность приготовления и древесину (порода придает блюду уникальное послевкусие и аромат). Использование щепы или опилок хвойных деревьев категорически запрещено. Это связано с высоким содержанием смолы.
Как сделать дымогенератор для холодного копчения своими руками: чертежи и правильная подготовка
Следует проект изучать в целом, чтобы созданным изделием было удобно пользоваться, а характеристики дыма соответствовали оптимальным параметрам. Поэтому вначале надо правильно определить место, в котором будет установлена коптильня. Необходимо обеспечить свободный доступ ко всем ее частям. Пригодится стол, на котором можно раскладывать и фасовать продукты.
«Классическая» схема коптильни
На рисунке видно, что охлаждение выполняется в длинном канале. Генератор дыма находится внизу, поэтому нагретый воздух поднимается самостоятельно. Явным преимуществом такого решения является автономность. Его использовали наши предки, не знавшие электричества. Но и в наши дни при наличии собственного земельного участка можно реализовать подобный проект. Оборудование будет выполнять свои функции экономично, без потребления электроэнергии.
В этом случае необходимо принудительное перемещение дыма
Здесь использован с пользой склон на земельном участке
Подобные масштабные сооружения создают на основе специального инженерного проекта. Их применяют для производства пищевых продуктов в коммерческих объемах. Обычные бытовые задачи будут решены успешно с меньшими затратами.
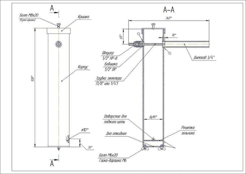
Пример чертежа дымогенератора для холодного копчения
Ниже отмечены важные для потребителей особенности:
- Изображенное на рисунке устройство является мобильным. Его можно подключать к разным коптильням, перевозить, хранить без лишних затруднений.
- Оно не нуждается в дополнительном источнике энергии. Поджигание и доступ воздуха – через отверстие диаметром 10 мм в нижней части корпуса.
- Если сделать дно съемным, будет проще удалять золу.
- Специальные гайки-барашки, это не только крепежные элементы. Их форма упрощает надежную фиксацию конструкции на земле.
- Назначение остальных элементов понятно из чертежа. Следует отметить, что размеры приведены рабочие. Но они не являются обязательными. При необходимости будущий пользователь вправе внести собственные коррективы.
Если нет подходящей трубы, можно сделать прямоугольный корпус
Изделия из нержавеющей стали дороже. Но они отличаются повышенной устойчивостью к внешним воздействиям, поэтому отличаются долговечностью
Устройство извлечения дыма можно вынести за пределы корпуса. Такое решение предотвратит засорение узладымогенератор для холодного копчения
Для охлаждения дыма увеличивают длину трубы от генератора до коптильни. На следующем рисунке приведен пример более совершенной системы.
Генератор дыма с эффективным охлаждением
Здесь применен электрический нагреватель с регулятором (1). Дым отбирается в верхней части. При прохождении по змеевику (2) он охлаждается. Следующий блок выполняет функции фильтра. В нижней части накапливается влага. Для последующего удаления применяют встроенный вентиль (3). Выше – вмонтирован аналоговый термометр (4).
Для подачи воздуха в эжектор часто используют аквариумный компрессор. Эта специализированная техника обладает достаточной производительностью. Она рассчитана на долговременную работу без присмотра. Минимальный шум и разумную стоимость также надо отметить, кок положительные характеристики.
Компактный аквариумный компрессор. В некоторых моделях есть регулировка производительности
Компрессор дымогенератора для коптильни холодного копчения своими руками сделать не сложно
При самостоятельном изготовлении подобных конструкций надо выбрать подходящие комплектующие узлы. Хорошо подходят компьютерные вентиляторы. Они способны длительное время выполнять свои функции без поломок.
Дымогенератор для холодного копчения своими руками: чертеж
Составление чертежа – это необходимый подготовительный этап, который позволяет выполнить соответствующие расчеты и обозначить их на бумаге. В схеме обязательно обозначается корпус дымогенератора, который может иметь круглую или квадратную форму.
Корпус самодельного дымогенератора используется в качестве камеры, которая наполняется топливом. Стенки устройства обязательно должны обладать хорошей герметичностью. В противном случае дым, образованный при тлении опилок, будет рассеиваться в окружающее пространство.
Чтобы сделать дымогенератор для холодного копчения своими руками необходимо использовать чертежи
Сами устройства для копчения продуктов подразделяются на разновидности в зависимости от конструктивных особенностей и назначения. Сегодня можно встретить габаритные стационарные устройства или, наоборот, более компактные, переносные. В конструкции коптилки может присутствовать заслонка. Этот элемент позволяет увеличить приток воздуха в камеру, которая содержит топливо.
Самодельная коптильня холодного копчения может иметь две топки. Такая конструкция направлена на увеличение тяги в системе. Дымогенераторы используются как в горячих, так и в холодных коптилках. В чертеже указываются все составляющие элементы устройства. Обязательно нужно внести в схему эжектор и его размеры, а также компрессор.
Как сделать дымогенератор своими руками: изготовление эжектора
Эжектор – это устройство, которое является трубкой и используется для создания необходимого показателя тяги в дымогенераторе. Данный прибор классифицируют по месту расположения. В зависимости от этого фактора можно выделить два типа эжекторов:
нижние;
Любой дымогенератор для коптильни холодного копчения состоит из контейнера, насоса (компрессора) и эжектора
верхние.
Первый вариант не рекомендуется специалистами для коптилок, изготовленных собственноручно. Это связано с тем, что такое размещение препятствует притоку воздуха, что, соответственно, отражается на тяге в конструкции. Трубки, установленные в нижней части, требуют постоянного контроля, что не очень удобно. При составлении чертежа дымогенератора необходимо заранее продумать расположение данной трубки и зафиксировать его на рисунке.
Избежать проблем с тягой довольно просто. Все, что для этого нужно, –разместить эжектор в верхней половине дымогенератора. Такой ход имеет несколько преимуществ. Установка эжектора в верхней части способствует увеличению объема зоны сгорания. Топливо, расположенное внутри камеры, тлеет медленнее в этом случае, а также уменьшается вероятность того, что оно потухнет.
Так производится сборка эжектора для дымогенератора своими руками. Чертеж, фото и пошаговая инструкция – все это позволяет выполнить грамотную сборку данного изделия.
Схема эжектора для дымогенератора холодного копчения
Из чего сделать компрессор для дымогенератора своими руками?
Компрессор считается одной из важнейших деталей прибора, который генерирует дым для копчения продуктов. Его можно приобрести отдельно, после чего присоединить к конструкции. Но чаще всего для этих целей используются различные подручные материалы, которые можно найти в каждой квартире или доме.
Статья по теме:
Нагнетатель воздуха своими руками можно выполнить из старого кулера. Данная компьютерная деталь как нельзя лучше подходит для увеличения притока воздуха в конструкцию. Необходимо соблюдать порядок действий по трансформации кулера в компрессор.
В первую очередь потребуется взять пластиковую бутылку и обрезать ее верхнюю часть. Далее с помощью клея следует присоединить вентилятор к внутренней части обрезанного пластикового элемента. С другой стороны (к горлышку) подключается шланг. Второй выход трубки подсоединяется к дымогенератору. Такая конструкция отлично справляется со своей функцией. Единственный ее минус заключается в непрезентабельном внешнем виде.
Компрессор для дымогенератора своими руками можно выполнить из старой компьютерной детали — кулера
Еще одним распространенным вариантом является покупка аквариумного компрессора для дымогенератора. Многие люди отмечают, что устройство для производства дыма может работать и без компрессора. Но эффективность такой установки ниже, так как воздух поступает в нее естественным путем.
Таким образом, для увеличения производительности рекомендуется собрать компрессор. Причем необязательно, чтобы он имел сложную конструкцию. Простой вентилятор для дымогенератора своими руками значительно упрощает копчение, а на его производство уходит не более часа.
Из чего состоит дымогенератор
Один из основных элементов для качественного копчения – это источник дыма. Обычно используют стружки или опилки, медленно сгорающие внутри генератора. При этом вы можете так собрать свой домашний дымогенератор, что одной загрузки дров будет достаточно для работы в автономном режиме на протяжении 24 часов. Для этого достаточно уменьшить поток подачи воздуха и увеличить объем щепы в загрузочной камере.
Комплектующие
Вариантов сборки также очень много, все зависит от технических возможностей и целей создания. Есть три основных элемента, без которых работа ни одного устройства не будет функционировать корректно:
- Контейнер (камера сгорания);
- Эжектор;
- Помпа для подачи воздуха.
Компрессор и вентилятор
При этом в процессе копчения продуктов есть свои тонкости, которые должны быть соблюдены:
- Минимальная температура поступления дыма;
- Длительность процесса;
- Не использовать хвойные опилки;
- Все продукты проходят предварительную очистку перед копчением.
Чтобы соблюсти все эти особенности процесса собирать основные элементы нужно правильно и тщательно. А чтобы продукты в вашей самодельной коптильне получились особенно вкусными, рекомендуется использовать щепки ольхи, вишни, яблони, груши или ивы.
Собранная камера (коптильня)
Переходим к особенностям главных элементов дымогенератора и их сборке.


























