Принцип действия
Как работает коптильня при холодной методике? Принцип действия устройства таков, что процедуру можно проводить не только на улице, но и дома, в апартаментах.
Суть технологии заключается в непрерывной подаче остывшего дыма (температура не должна превышать комнатную) в емкость, где держатся подготовленные полуфабрикаты.
Дым поступает равномерно, без резких скачков и колебаний. Общая продолжительность процедуры напрямую зависит от выбранного типа продукта и его размера. Очень крупные партии могут коптиться до 7 суток.
При чём в процессе копчения необходимо поддерживать определенную температуру дыма. Если она не превышает +25 градусов, значит, производство блюда идет правильно.
Чтобы система работала корректно, рекомендуется использовать на установках специальную трубу. Ее длина достигает от 1.5 до 3 метров. Такой дымоход при прогонке дыма поможет его остудить до необходимого уровня.
Еще одна особенности такой системы копчения, которая часто используется на производстве продуктов от компании Царицыно, — усушка сырья, но с сохранением жировой прослойки. Дым низкой температуры обладает коптящими свойствами. Фенолами, муравьиной кислотой, смолистыми веществами, которые отличаются обеззараживающим действием, он пропитывает волокна подготовленных кусков.
Печь-коптильня из кирпича своими руками
Печь-коптильня из кирпича — отличное решение для любителей приготовления копченых продуктов своими руками. Она позволяет создавать вкусные и ароматные блюда, сохраняя при этом их полезные свойства.

Список материалов:
- Кирпичи (стандартного размера)
- Шамотная плита или огнеупорный кирпич
- Цемент
- Песок
- Металлическая сетка (проволока)
- Металлический уголок или профиль
- Металлический лист (на выбор)
- Решетка или гриль
- Термометр

- Определите место для печи-коптильни. Убедитесь, что выбранное место отведено подальше от горючих материалов и обеспечивает удобный доступ к печи.
- Подготовьте фундамент. Равномерно выровняйте землю и создайте площадку, достаточно прочную для установки печи. Залейте фундамент из цемента, песка и воды и дайте ему высохнуть в течение нескольких дней.
- Разметьте на фундаменте размеры основы из кирпичей, учитывая будущую дверку для доступа к камере копчения. Уложите первый ряд кирпичей, используя цементный раствор в качестве клея. Продолжайте строительство, следуя выбранному размеру и оставляя отверстие для дверки.
- Настройте металлическую сетку на готовую основу печи, чтобы создать камеру копчения. Установите шамотную плиту или огнеупорный кирпич на металлическую сетку, чтобы создать основу для копчения.
- Установите второй уровень кирпичей, создавая дымоход, который будет выводить дым от камеры копчения вверх. Убедитесь, что дымоход достаточно высокий, чтобы избежать задымления вокруг печи.
- Установите металлический лист на вершину дымохода, чтобы предотвратить попадание воды и сохранить тепло внутри печи. Закройте дверку печи, используя металлический уголок или профиль в качестве дверной рамы. Установите решетку или гриль на дверку для помещения продуктов внутрь.
- Добавьте термометр. Установите термометр на печи, чтобы контролировать температуру внутри во время копчения.






Основные правила
Чтобы холодная методика копчения была правильной, рекомендуется придерживаться некоторых правил:
- Использовать только сухие качественные дрова.
- Подкладывать мокрое сено, которое служит фильтром и придает продуктам изысканный аромат.
- Следить за неполным прогоранием древесины.
Наиболее распространенные ошибки при готовке по этой технологии касаются слишком активного прогорания опилок или дров. В результате дым становится темным. Иногда его специально раздувают. Делать это не нужно! В противном случае будет нарушена вся технология приготовления деликатесов.
Чтобы сделать продукт более ароматным, в коптильную камеру советуют добавлять:
- чабрец;
- лавр;
- тимьян;
- карри;
- чернослив;
- карри;
- любисток;
- паприку;
- черный перец.
Еще можно использовать розмарин, гвоздику и другие приправы на свое усмотрение.
Другое правило касается применения подходящего сырья для топки. Для этого подходят:
- виноградная лоза;
- вереск;
- можжевельник;
- плодовые деревья (абрикос, груша, вишня, яблоня и т. д.).
Но так как у каждого кулинара личный рецепт, допустимы и другие варианты. Главное – помнить: в процедуре важен не дым, а само горение. Поэтому не надо использовать гнилые и сырые ветки или опилки.
Какие продукты можно коптить
Название данной рубрики – это, скорее, не вопрос, иначе ответ бы пояснял, что коптить можно все, что вздумается. Поговорим о том, каким блюдам подойдет запах дыма и характерный привкус.
Копченую рыбу можно встретить на прилавках любого продуктового магазина. Мясо рыбы достаточно рыхлое, поэтому закоптить ее можно очень быстро. Вкус рыбы и копчености отлично сочетается, причем для всех без исключения сортов и видов рыб. Определено, как горячее, так и холодное копчение, но следует учитывать, что рыбка, закопченная по-горячему, будет храниться всего пару дней, в то время, как продукция холодного копчения полежит несколько недель.
Любимой закуской на столе всегда являлось сало. По крайней мере, у большинства славянских народов этот продукт входит в перечень национальных блюд. Копчение придает салу пикантный вкус, который отлично сочетается с ароматным дымком. В классических рецептах говорится о том, что сало коптят холодным способом, однако при термообработке оно меняет консистенцию и становится более мягким. Сало горячего копчения больше ценится, если содержит мясные прослойки, поэтому с разных частей тушки его следует коптить по-разному.

Мясо птицы содержит много витаминов. Дичь, как и домашнюю птицу, желательно коптить холодным копчением, ведь именно такой способ гарантирует целостность всех полезных веществ. Популярными считаются рецепты, в которых тушки птицы коптятся целиком. При больших же габаритах их разделывают на следующие части:
- голени;
- бедра;
- крылья;
- грудка.
Вырезка свинины тоже может иметь разную структуру. Обычно сорта мяса, без жировой прослойки, готовят так, чтобы блюда сохраняли свои свойства, упругость, структуру, витамины, это, прежде всего, балык, буженина, корейка. Готовят мясо холодным, горячим и полугорячим способом. Многие любители самостоятельного копчения отмечают, что настоящее блюдо должно содержать минимум приправ. Отсюда и пошло разделение на пряный и простой способ засолки при предварительной подготовке.
Говядину приготовить достаточно сложно, так как мясо довольно жесткое и волокнистое. Зная принципы предварительной проварки перед самим процессом копчения, можно легко превратить этот «капризный» продукт в настоящий шедевр, сделав его сочным и мягким.

Кисломолочные продукты в виде различных сыров, коптятся исключительно холодным способом. Время дымовой обработки исчисляется десятками секунд, так как не стоит забывать о процессе плавления. По той же причине приходится использовать в качестве сырья только твердые сорта сыров.
Альтернативные варианты коптилен
Помимо самостоятельного устройства, существует ряд комбинированных приспособлений для копчения.

В таком варианте компактная передвижная коптильня совмещена с мангалом, причем процесс копчения и приготовления блюд на углях может производиться одновременно.

Здесь помимо дровяной печи с выходом дыма в коптильную камеру присутствует тандыр.

А здесь представлен полноценный комплекс для приготовления практически любой еды – от томленых в русской печи каш и супов до шашлыков и копченой колбасы.
Важно: если изготовление простейшей коптильни требует только сравнительно небольших затрат труда и времени, то сложные комплексные устройства лучше оставить профессионалам.
Особенности процесса холодного копчения
Копчение применяется в качестве одного из способов приготовления пищи с древнейших времён. За многие тысячелетия были изобретены сотни рецептов копчёных блюд, приготовляемых из мяса, рыбы, птицы, и даже из овощей и фруктов.
Дым обладает антисептическими и консервирующими свойствами, убивая в продукте патогенные микроорганизмы. Кроме того, при обработке дымом, полуфабрикат пропитывается неповторимым ароматом, который составляет немаловажную часть кулинарных достоинств любых копчёностей.

Для достижения наилучшего букета ароматов, знатоки рекомендуют использовать стружку и опилки лиственных пород деревьев – ольхи, дуба, абрикоса, яблони и т.д. Главное отличие холодного метода копчения от горячего состоит в температуре дыма. Если во втором случае можно больше говорить о термической обработке продукта, то во втором случае основное воздействие на него оказывает низкотемпературный дым.
Однако, вышеприведённые стандарты актуальны только для изготовления копчёностей по старым, традиционным технологиям. Сегодня при изготовлении продукции на производствах широко используются жидкий дым и прочие химикаты, что значительно удешевляет и ускоряет процесс производства.
Одновременно, это снижает вкусовые качества получаемого продукта, но и делает его небезопасным для человеческого организма. Отличной альтернативой заводской продукции с сомнительным качеством является холодное копчение в домашних условиях.
Коптилка холодного копчения своими руками. Видео, фото инструкция
Идея с собственноручным изготовлением коптильни имеет массу плюсов. Главное достоинство — это не ограниченные возможности в выборе габаритов, месте расположения и способа дымообразования. Устройство можно сделать как для уличного использования, так и для закрытого помещения.
Как сделать коптильню холодного копчения своими руками
Процесс сооружения конструкции будет изложен на примере стационарной коптильни во дворе частного дома.
Самодельная коптильня холодного копчения своими руками. Чертёж
Пошаговая инструкция:
- Нужно распланировать место на участке для будущей коптильни. Вам понадобится примерно 1 метр в ширину и 4 метра в длину.
- С помощью лопаты необходимо вырыть траншею в половину метра глубиной, 0.3 метра шириной и на всю длину запланированного участка. В начале и в конце траншеи нужно организовать две ямы с габаритами 0.5×0.5×0.5 метра. Та сторона, с которой будет расположен очаг костра должна быть ниже по уровню чем противоположная, минимум на 20 сантиметров. Это обусловлено тем, что под таким углом дыму будет легче достигать самой коптильни.
- Теперь, яму для костра нужно обложить огнеупорным кирпичом. Стенки из камня должны быть выше земли на 10 сантиметров, чтобы крышка для камеры сгорания плотно закрывала верх. В стене со стороны коптильни нужно организовать отверстие для трубы, верхний край которой должен находиться на уровне 5 см от верха почвы.
- Время прокладывать дымоход в траншею. Трубу можно использовать как асбестовую, так и металлическую. В котлован для костра дымоход должен входить на пару сантиметров, а со стороны коптилки труба должна иметь колено на 90 градусов, чтобы в горизонтальном положении войти в днище конструкции.
- Подошла очередь самого короба установки. Какой формы и из каких материалов он будет — решать вам. Возьмите подготовленную коробку и расположите её над трубой для дыма так, чтобы она была по центру днища. Ножки сооружения необходимо надёжно закрепить к земле.
А теперь можно развешивать крючки, ставить противни и раскладывать продукты для копчения. Распаливайте костёр и ожидайте вкусных деликатесов.
Watch this video on YouTube
Коптильня из нержавейки
Копчение продуктов – это великолепный способ добавить уникальный аромат и вкус к мясу, рыбе и другим продуктам. Создание своей собственной коптильни для холодного копчения из нержавеющей стали может быть интересным и полезным проектом. Холодное копчение проводится при температуре не выше 30 градусов Цельсия, что позволяет сохранить все полезные свойства продуктов.
Список инструментов и материалов:
- Лист нержавеющей стали толщиной 1-2 мм
- Металлические уголки и планки для создания рамы
- Электроды для сварки нержавеющей стали
- Сварочный аппарат
- Болгарка
- Краска для металла (при желании)
- Вентиляционные решетки
- Уплотнитель для дверцы
- Петли для двери
- Термометр для контроля температуры
- Контейнер или лоток для сбора жира
- Трос или стальная цепь для подвешивания продуктов
- Генератор дыма для холодного копчения

Отрежьте из листа нержавеющей стали пять одинаковых прямоугольников: один для дна, три для стенок и один для дверцы. В качестве шестой стенки может служить уже существующая стена или она может быть изготовлена отдельно. Соберите корпус, сварив детали вместе, используя металлические уголки для большей устойчивости. Дверцу пока не прикрепляйте.

Создайте вентиляционные отверстия в верхней и нижней части коптильни. Они нужны для регулирования температуры и обеспечения тяги. Установите вентиляционные решетки. Прикрепите петли к дверце и корпусу коптильни. Установите дверь на петли. Прикрепите уплотнитель вокруг периметра дверцы, чтобы обеспечить герметичность.

В верхней части коптильни прикрепите трос или стальную цепь, на которую будут подвешиваться продукты. Установите термометр на корпусе коптильни для контроля температуры внутри коптильни. На дне коптильни установите контейнер или лоток для сбора жира. Установите генератор дыма. Его можно поместить внутри коптильни или внешний, с подводом дыма через трубу. Если вы хотите, можно окрасить коптильню снаружи краской для металла для дополнительной защиты от коррозии.

Это не просто увлекательное занятие, но и шаг к созданию домашнего деликатеса, придающего изысканный вкус вашим блюдам. Надеемся, что представленная информация оказалась полезной и понятной. Теперь у каждого есть возможность насладиться своими собственными копченостями, приготовленными по традиционным методам с использованием самодельной коптильни.
Безопасно и удобно
Сначала для будущей коптильни холодного копчения нужно выбрать подходящее место. Во-первых, оно не должно быть пожароопасным. Во-вторых, его нужно выбирать с точки зрения удобства: хорошо, когда рядом с коптилкой можно и присесть, и разместить продукты. Кроме того, нужно позаботиться и о месте для подземного дымохода: в длину – не менее 3 метров, в ширину – от 30 до 50 см, в высоту – от 25 до 27 см.
Не следует забывать и о том, что между камерой и очагом нужно будет сделать хорошую тягу. Большое влияние в этом случае оказывает разница температур между горячим дымом и окружающим воздухом, поэтому сделать ее не так-то просто. Для хорошей тяги можно использовать вентилятор, а для охлаждения дыма – коллектор.
Особенности процесса копчения
Принцип данного вида копчения заключается в дымовой обработке еды, которая происходит из-за тления древесных опилок и щепы. Температура коптильного дыма в коптилке холодного копчения своими руками не должна быть выше 30-32 °С. Продукты в конструкции обрабатываются минимум 5 дней. Не стоит торопиться, так как при такой температуре могут размножаться бактерии, и можно заработать отравление.
Для равномерного копчения лучше использовать один вид продуктов, сортируя окорока по размеру. В коптилке холодного копчения своими руками продукты нужно сделать за один прием, не подкладывая их в процессе готовки, иначе можно все испортить.
Равномерное копчение одного вида продукта
Прежде всего, необходимо знать, как сделать коптилку холодного копчения в домашних условиях, чтобы на выходе получился вкусный, ароматный и полезный деликатес.
Основные отличия холодного копчения от горячего

Основным отличием холодного и горячего способов копчения является температура в коптилке. При этом разница температур при обработке еды дымом, разными способами существенная и может достигать 90 °C. За счёт такого большого разбега сильно отличаются органолептические качества конечного продукта копчения.
Поэтому можно прийти к выводу, что коптильни для горячей и холодной обработки пищи — механизмы конструктивно схожие, но вкусовой результат готового продукта очень разный.
При горячем копчении за счёт высокой температуры провианты непросто коптятся, но и одновременно запекаются. При этом такой вариант приготовления пищи не займёт больше нескольких часов. Но сроки хранения готовой продукции, минимальные в отличие с технологией копчения продуктов холодным дымом. Срок годности мяса и рыбы горячего копчения не превышает нескольких дней в холодильнике.
Несмотря на скорость приготовления пищи, горячим дымом, большинство людей отдают предпочтение процедуре холодного копчения. Это обусловлено тем, что конечный продукт помимо приобретения интересного вкуса может сохраняться достаточно долгое время даже без холодильника.
Как подготавливать продукты к процедуре копчения
Подготовительный процесс перед копчением мясных или рыбных продуктов довольно ответственный, поэтому и отнестись к нему нужно с должным вниманием
Используемые для копчения съестные припасы заранее натираются солью и маринуются в собственном соку не менее 5 суток. Если подготавливается замороженный продукт, то и время пока он маринуется, увеличивается.
Самым важным качеством соли считается уничтожение вредных микроорганизмов, которые погибают из-за потери влаги в мясе, птице или рыбе.
После мариновки продукт вялят, для чего его избавляют от лишней влаги и оставляют в помещении с хорошей вентиляцией
При этом очень важно проследить, чтобы на будущие копчёные деликатесы не садились насекомые.
Только после всех рассмотренных выше процессов можно переходить к непосредственному копчению мяса или рыбы.
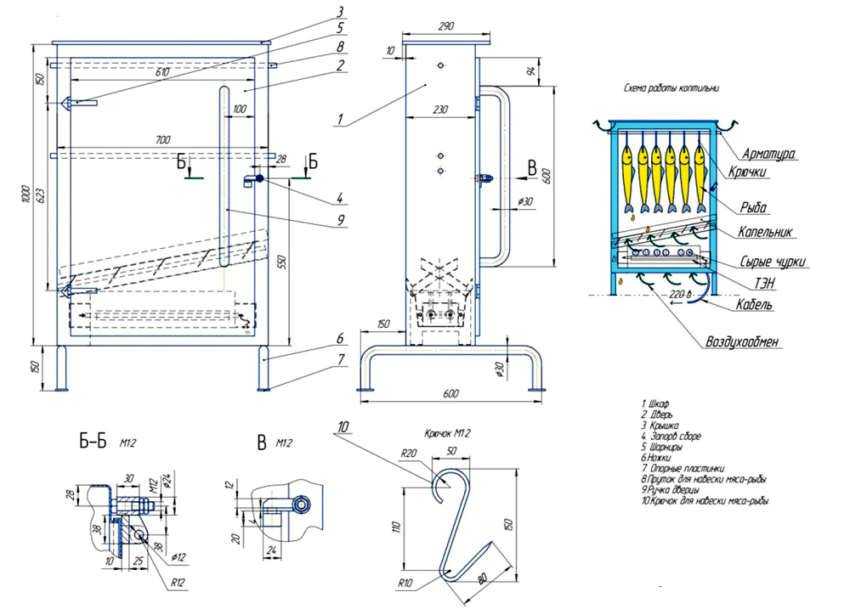
Как устроена коптильня холодного копчения
Коптильня холодного копчения имеет достаточно сложную конструкцию и состоит из нескольких важных элементов. Основными составляющими коптильни являются непосредственно коптильная камера и топка (идеальным вариантом будет дымогенератор). Также в обязательном порядке данные два элемента соединяются между собой дымовой трубой.
Принцип работы
Принцип работы коптильни холодного копчения достаточно простой и состоит из нескольких этапов.
- В топку необходимо поместить щепу или же опилки. Использовать можно самые разные породы древесины, но предпочтение лучше отдать лиственным или фруктовым деревьям. Наиболее популярными вариантами считается ольха или же липа. Окончательный выбор щепы для холодного копчения в домашних условиях будет зависеть от того, какие именно продукты будут обрабатываться дымом. Не стоит использоваться щепу хвойных деревьев, ведь в ней содержится слишком много смолы, что будет отрицательно сказываться на вкусовых качествах готовых копченостей.
- Дальше опилки или щепа поджигаются. Спустя некоторое время создается тяга и дым начинает поступать в трубу. Стоит отметить, что труба должна иметь длину не менее двух метров. В противном случае дым не успеет остыть до нужной температуры, что может испортить копчености. Если же труба будет иметь достаточную длину, то при попадании в коптильный шкаф температура дыма не будет превышать отметку в 30 градусов.
- Во время постоянной и длительной обработки, продукция будет постепенно терять влагу и приобретать характерные для копченостей характеристики. Но необходимо при этом все время следить за тем, чтобы в коптильный шкаф поступало достаточное количество дыма.
Сама по себе технология холодного копчения достаточно простая. В то же время можно допустить весьма большое количество ошибок, которые в конечном результате могут испортить готовые копчености.
Как сделать традиционную холодную коптильню из дерева своими руками
Выкапываем котлован, траншею и заливаем фундамент
После разметки выкапывают два небольших котлована, расстояние между ними равняется тем же рекомендованным 2000-2500 мм. Первый, предназначенный для коптильни, должен находиться на возвышенности. Его глубина — 400 мм. Второй, используемый для фундамента топки, заглубляют на 250 мм.
На следующем этапе углубления соединяют, выкапывая траншею. Далее в котловане под коптильню устраивают традиционную подушку из песка и щебня, слои делают такой же толщины, как в случае с блочным строением. Заливают половину раствора, укладывают арматурную сетку, но в этот раз ее ячейки 30х30 мм. Сверху распределяют оставшийся раствор, толщина стяжки — 40 мм. Таким же образом делают фундамент для топки.

В траншею укладывают трубу меньшего диаметра. Со стороны топки она должна быть короче траншеи на 200 мм. На край ее наносят раствор и надевают полуметровый отрезок трубы большего диаметра, он должен заходить на тонкую часть дымохода на 150 мм. Это расширение перед коптильней даст возможность дыму приобрести оптимальную температуру.
По краям этого широкого патрубка, заходящего в топку, устанавливают 2 кирпича. Затем переходят к кладке стенок в полкирпича. Трубу заливают раствором, монтируют топочную дверцу, которую дополнительно крепят с помощью проволоки, уложенной в швы кладки. Сверху на топку укладывают металлический лист.
Собираем каркас

Его собирают из бруса, в качестве крепежа используют саморезы. После сборки передней и задней рамы их соединяют брусками. По бокам верхней «обвязки» крепят элементы, выступающие за периметр на 50 мм. К ним будет крепиться стропильная система. Для сооружения конька крыши посередине переднего и заднего бруса фиксируют вертикальные стойки, их также соединяют вместе длинным элементом, выходящим за периметр на 50 мм. Посередине его набивают две доски такой длины, что бы свес составлял как минимум 150 мм.
Обшивка досками
Три стороны каркаса-полуфабриката плотно обшивают досками в 2 слоя: сначала крепят элементы вертикально, потом — горизонтально. Формируя дверной проем, его делают на 5 мм больше дверцы, обеспечивая ее свободное вхождение даже в случае температурного расширения. Перед обшивкой последней стороны внутри по бокам крепят перекладины с вырезами для металлических стержней. На них будут висеть крючки, предназначающиеся для продуктов.

В крыше сверлят отверстие для дымохода, его диаметр — 5 мм. Чтобы обеспечить полную изоляцию зазора, щелей между досками, используют клей и паклю. Дверцу также делают из 2 слоев досок. Для контроля температуры в ней делают отверстие для штыревого термометра. Дно оставляют открытым. Готовый домик, обработанный гидрофобной пропиткой, крепят к цоколю металлическими скобами. Для обеспечения большей надежности крышу коптильни покрывают легким кровельным материалом.
























